Max Studio
'85m2 Loft Minimalista - PDF/DWG
'85m2 Loft Minimalista - PDF/DWG
No se pudo cargar la disponibilidad de retiro
Descripción
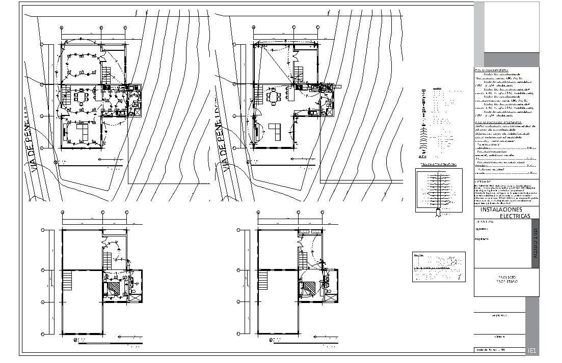
Ingeniería de Alta Gama Lista para Construir El oft MS - 85m2 es un proyecto residencial premium diseñado para destacar. Con una geometría moderna no ortogonal y una estructura principal de Acero.
Ficha Técnica del Proyecto:
- Área Estimada: 85 m²
- Niveles: 2
- Habitaciones: 1
- Baños: 2
- Estilo Estructural: Acero / Arquitectura Moderna
¿Qué incluye tu descarga? (Full Pack PDF + DWG)
- Planos Arquitectónicos
- Ingeniería Estructural
- Instalaciones Sanitarias
- Instalaciones Eléctricas
-
Renders
- Memorias Descriptivas
El Valor de la Experiencia: Este diseño no es solo un dibujo; es una geometría validada por décadas de ejecución en estructuras metálicas. Ahorra semanas de trabajo técnico con un proyecto listo para su ejecución.
⚠️ AVISO LEGAL Y CONDICIONES DE USO Venta Final: Debido a la naturaleza digital y de código abierto (DWG) de este producto, no se aceptan devoluciones ni reembolsos bajo ninguna circunstancia. Este diseño se entrega como material de referencia técnica. Estos planos se entregan como ANTEPROYECTO TÉCNICO Y REFERENCIAL. El cálculo estructural e instalaciones deben ser revisados, adaptados a la normativa local y firmados por un ingeniero/arquitecto colegiado en el país de destino

Compartir
